Company: VON Architect
Date: 2022
Location: Canakkale | Turkiye
Contribution: Strategic Definition | Preparation & Brief | Conceptual Design | Planning Permission | Technical Design

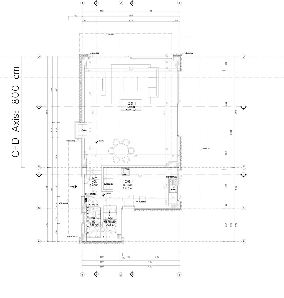
Type A - Main Level Plan

Type B - Main Level Plan

The project is designed to create variations of a single plan in different sizes according to parcel sizes. The project was designed to create variations of a single plan in different sizes according to the parcel sizes. To achieve this, AutoCAD dynamic blocks were used to adapt the plans, sections and elevations by simply changing the axis spacing dimensions.

Type A - Right Elevation

Type B - Right Elevation

Back to Top